ABOUT PROJECT
项目名称:绿地翡翠墅
项目设计师:赵飞
项目面积:450m²
户型:独栋别墅
设计风格:极简
项目地点:苏州市吴江区绿地翡翠墅
别墅主体是一栋地上二层、地下一层的欧式建筑,利落的线条、简洁的形体和纯净的色彩呈现出当代设计的美感,设计师在室内部分做了极简设计风格,内外空间形成强烈视觉冲击。
空间的色彩层次与艺术韵律相互映衬,丰富着该业主美好生活的每一次场景定格,将法式优雅气质与浪漫情调演绎到极致。















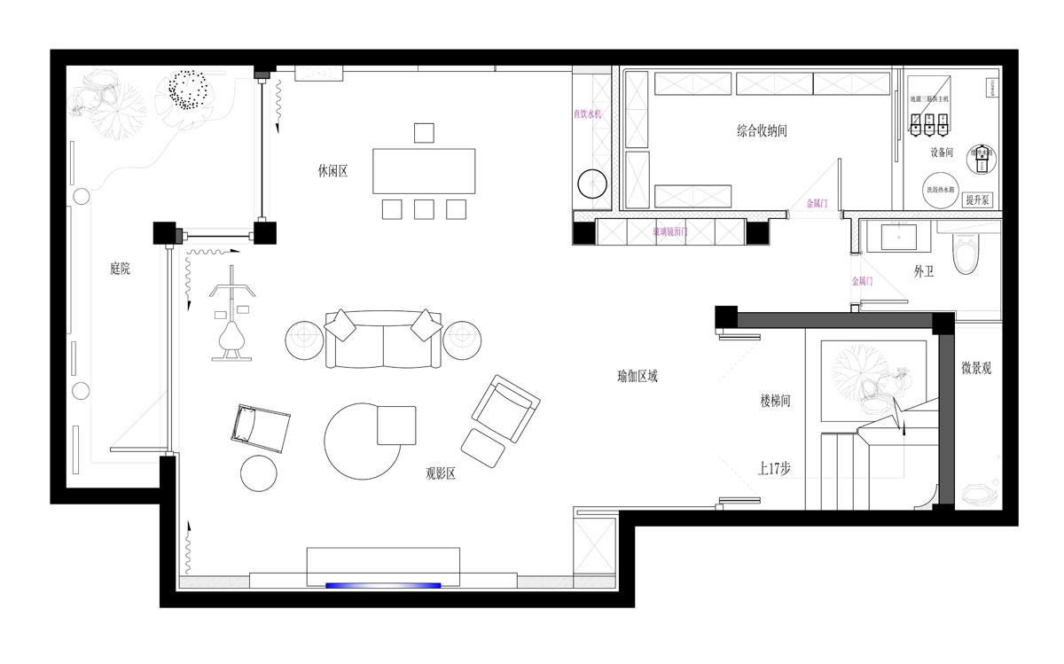
负一层平面方案图

一层平面方案图

二层平面方案图

为您提供全套家装解决方案
