ABOUT PROJECT
项目名称:太湖东岸
项目设计师:赵飞
项目面积:300m²
户型:叠墅
设计风格:现代法式
项目地点:苏州市吴江区太湖东岸
项目是一个底复,位于吴江区稀缺低密住区,原始建筑在格局上存在不少硬伤,与业主的现代生活需求不符。设计师通过重构优化,终让其重获新生。
一个私宅空间 ,客体性的存在是一切动作开始的前提。对于纯粹视觉带来的美感而言,设计师关注是一个动作或现象的动机和目的性,是否有着积极的关系和良好的体验反馈。
项目是排屋的端户,客厅外扩,将原油较窄的客厅在尺度上进一步增加,让光线成为客厅的主角,阳光透过纱帘照射进来,每个时段都有着不同的光影变化。















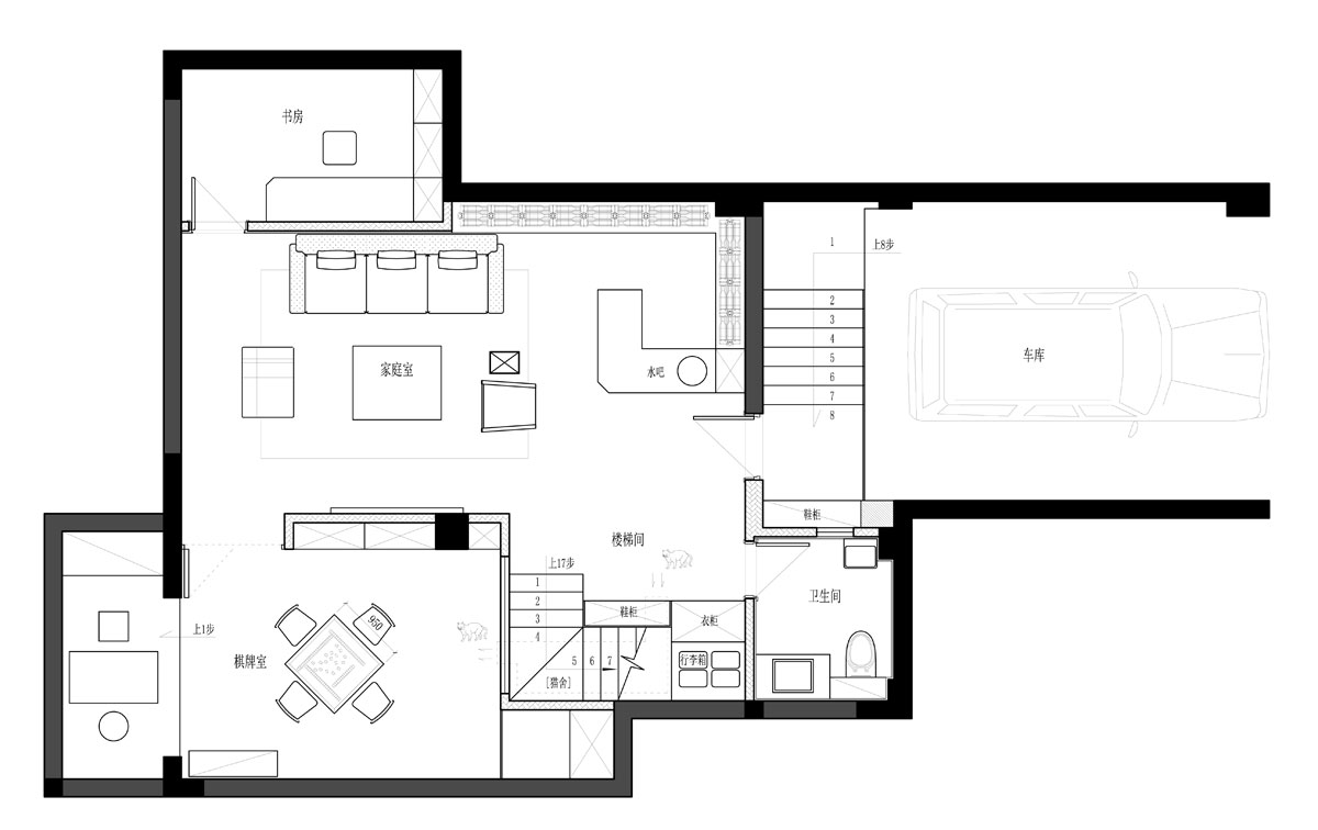
负一层平面方案图

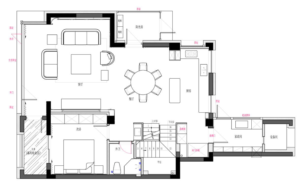
一层平面方案图

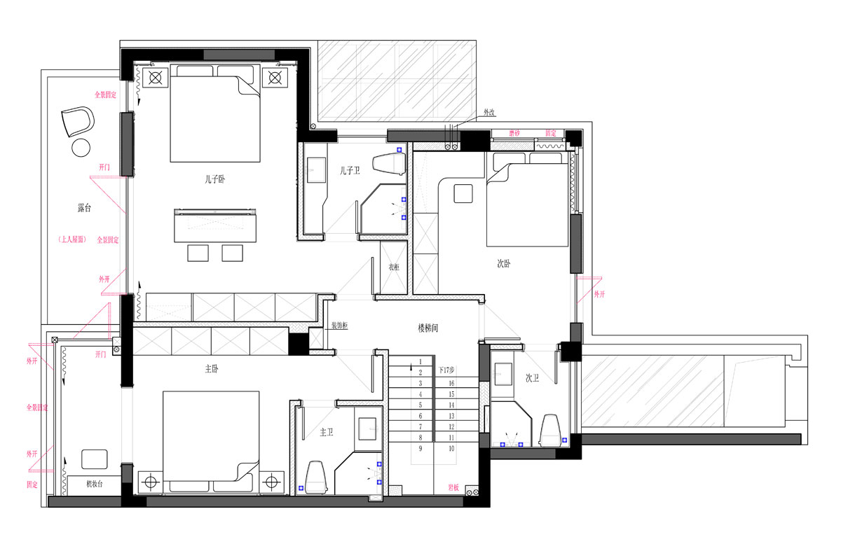
二层平面方案图

为您提供全套家装解决方案
