项目名称:汇景名苑
项目设计师:赵飞
项目面积:130m²
户型:平层
设计风格:现代
项目地点:苏州市
本案位于吴江区汇景名苑,毛坯房房,经过拆改后,从布局、层次和场景情绪都圆满了业主对家的想象。以极具格调和视觉冲击力的构造,糅合框景、障景、叠景的手法,让公区显得通透,烘托沉静安适的氛围,给予心灵柔软的拥抱。
思考现代风格在家居环境中的存在意义,将艺术张力拉满,准确对应了所追求的质感与流动感。在窗的部分,把空间让予自然,增强生活的惬意属性。根据不同场景的需求点缀花艺,慢品烟火与岁月。基础配色不变,公私场域的精神同在,以鲜活的装饰元素调动空间情绪,达成场域互联的关系。玻璃窗冲破空间的最后一层束缚,将绿意引入了家。“绽”开的沙发形态,仿佛读懂了自然,自发地舒展出温柔气质。用原石打磨的茶几,轻微错落,呈现出海浪的自由感。








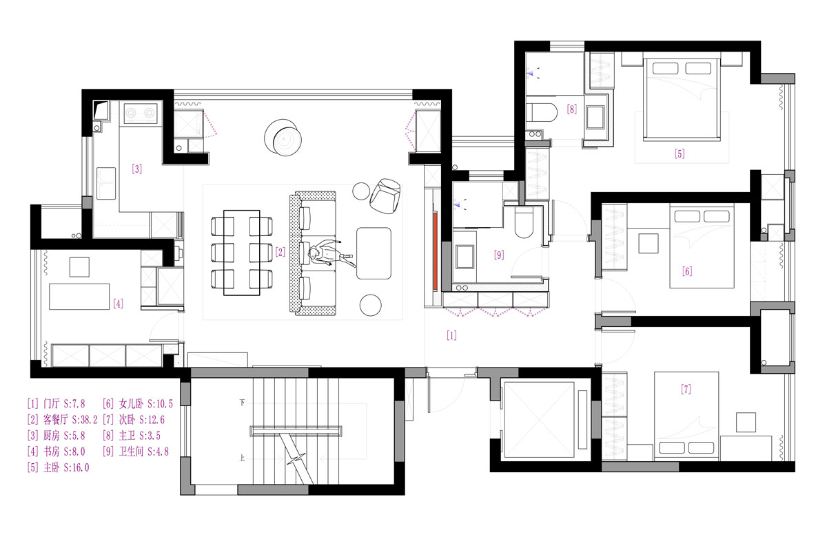
平面方案图

为您提供全套家装解决方案
