ABOUT PROJECT
项目信息
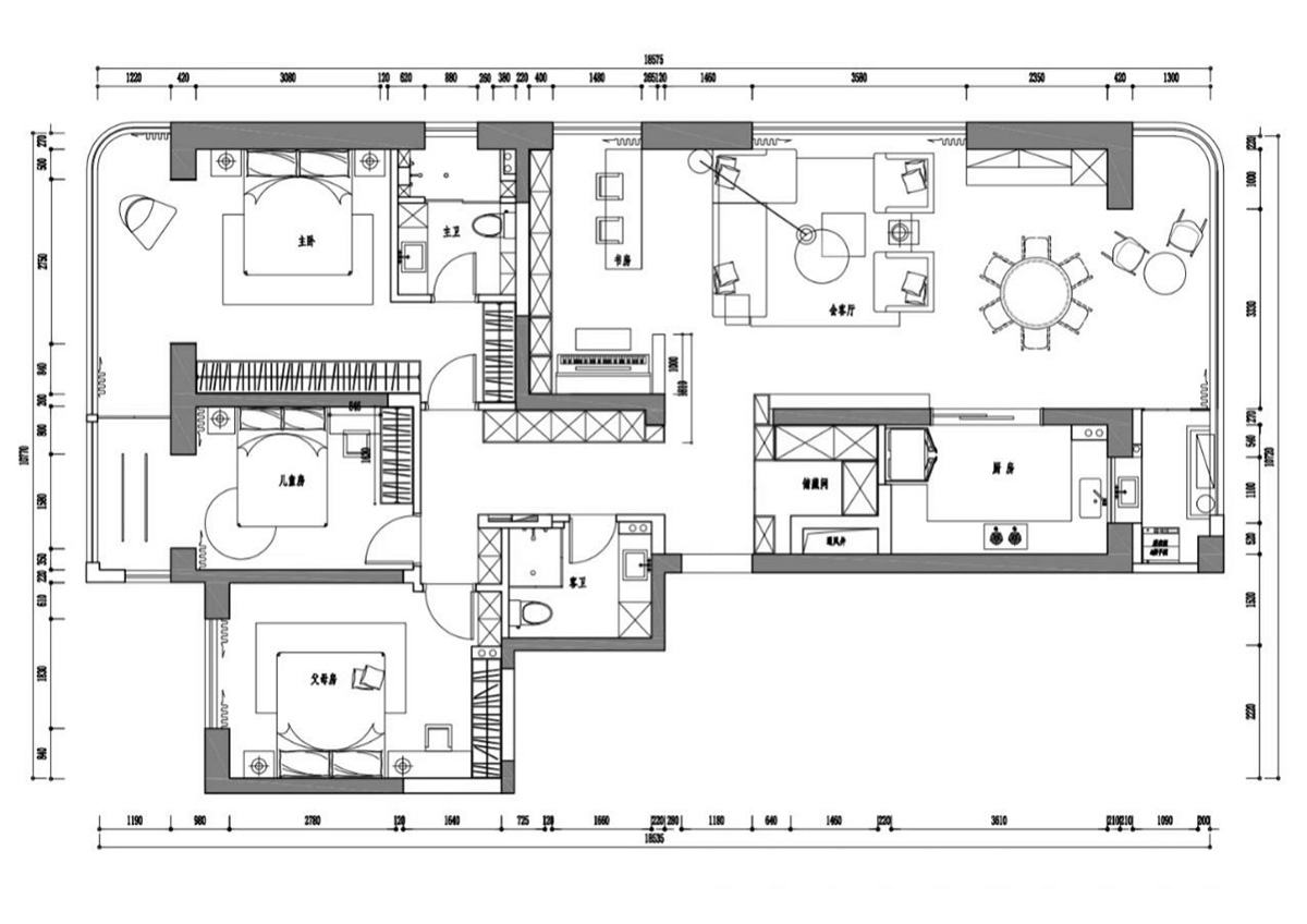
项目名称: 中冶锦绣天玺
项目设计师:顾丽丽
项目面积:202m²
户型:大平层
设计风格:意式极简
项目地点:中冶锦绣天玺
本案以意式极简风格,打造宁静开阔的居住空间。大横厅设计连通客餐厅,打破空间隔阂,让江景无遮挡映入室内,搭配无主灯与隐藏式收纳,尽显开阔通透。
色彩上,选用米白、浅灰等低饱和度中性色,奠定平和基调。墙面用微水泥,地面铺大尺寸大理石瓷砖,家具以棉麻、实木等天然材质为主,质感满满。空间转折处做弧形收边,再点缀几盆绿植,刚柔并济,营造惬意江畔生活。











为您提供全套家装解决方案
